
Seu Novo Espaço
Em breve Resplendor terá seu primeiro centro comercial. Com capacidade para até 20 empreendimentos, a população da cidade e região terá novas opções para compras, prestação de serviços, alimentação e lazer.
Se você é um empreendedor em busca de uma oportunidade real para abrir um novo negócio ou transferir o seu atual negócio, venha conhecer nosso espaço. Em construção e com inauguração prevista para 1º de julho de 2026, pode ser a oportunidade que você estava esperando.
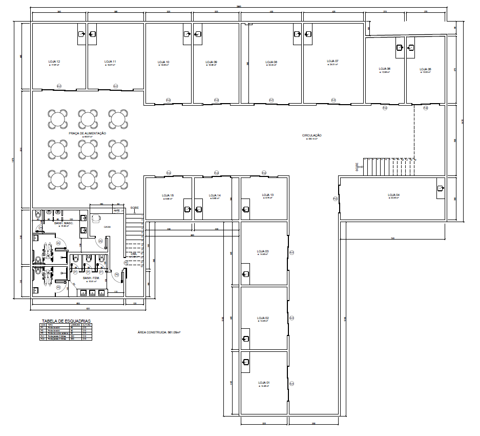
Planta Baixa
Nessa fase estão sendo disponibilizadas as lojas do primeiro piso sem mezanino.

Principais Características
As lojas podem ter de 10 a 30 m2. Ajustes na planta original podem ser feitos para caber sua loja com perfeição. Além do comércio e prestação de serviços, haverá uma praça de alimentação com opções variadas, proporcionando uma inovadora experiência gastronômica e ampliando o fluxo de pessoas ao local.
Corredores amplos, banheiros, climatização, zeladoria e abrigo de sol, chuva e trânsito são outros itens que contribuirão para a segurança e conforto de todos os usuários.
FAÇA UMA VISITA VIRTUAL AO PROJETO NO VÍDEO LOGO ABAIXO. ESSE VÍDEO CONTEMPLA A FASE 2.
Localização
A galeria está localizada na área mais central da cidade, no quarteirão onde estão o hospital, a Prefeitura, o Banco do Brasil e dezenas de comércios. A Rua Antálcidas Sérgio Ferreira é a rua de maior movimento da cidade e o ponto dos ônibus de toda a região é bem na porta. O que não vai faltar é fluxo de pessoas no local.

O Mercado Local
Estudos feitos sobre a economia apontam para uma demanda reprimida de espaços para locação na cidade. Em meio a 300 endereços comerciais identificados na parte sul da cidade no mês de julho de 2025, foram encontrados apenas oito pontos comerciais fechados e apenas um deles com placa de aluga-se.
Com quase 18 mil habitantes e sendo polo microrregional, estima-se que o consumo na cidade entre bens e serviços seja da ordem de R$ 15 milhões mensais. A meta é atrair pelo menos 5% deste potencial.
Padrão de Qualidade e Lucro
Os empreendimentos interessados passarão antes por uma triagem para garantir que atendam padrões mínimos de qualidade no que fazem e como fazem e ao mesmo tempo com checar se possuem uma clara perspectiva de lucratividade. Empresas que não lucram morrem. Para garantir a vida longa aos empreendimentos no local, a PROLUCRO, gestora do projeto, além da triagem, pode ajudar na revisão do seu plano de negócio de forma a aumentar seu potencial de sucesso.
Quem Somos
Esse empreendimento é de propriedade e gestão dos herdeiros da família Vieira Figueira, uma das pioneiras na cidade. Imóvel e recurso próprios garantem total solidez ao empreendimento.
Aos Interessados
Se você ficou interessado em aderir ao projeto como empreendedor / lojista, conheça mais detalhes do empreendimento clicando no link abaixo.
